Eladó lakás Miskolc 19 900 000 Ft

Leírás


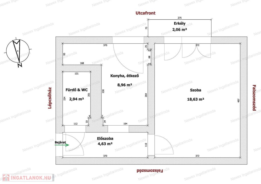
Miskolc egyik közkedvelt városrészében, Észak-Kiliánban kínálunk eladásra egy 38 m²-es, erkélyes téglalakást, amely ideális választás lehet befektetőknek, első lakást keresőknek, fiataloknak, egyedülállóknak vagy akár idősebbek számára is.

 

A lakás praktikus elrendezésű, helyiségei:

- előszoba

- különálló szoba

- konyha

- fürdőszoba

- erkély



Az ingatlan átlagos állapotú, így akár azonnal költözhető vagy bérbe adható, ugyanakkor igény szerint könnyen saját ízlésre alakítható.



A fűtés konvektoros, amely egyszerűen szabályozható és költséghatékony megoldást biztosít a téli hónapokban. A lakás fenntartása rendkívül kedvező: a közös költség mindössze 5 920 Ft/hó. A parkolás az utcán ingyenesen megoldható.



A környék csendes, mégis jól megközelíthető, a mindennapi élethez szükséges szolgáltatások könnyen elérhetők.



Befektetők számára különösen vonzó, hiszen az ilyen típusú lakások a környéken könnyen és gyorsan kiadhatók rövid vagy hosszú távra is, így stabil bevételi lehetőséget kínálnak.



Ha egy értékálló, jó adottságokkal rendelkező téglalakást keres Miskolc egyik kedvelt részén, ezt az ingatlant érdemes megnézni!



További információért vagy megtekintés egyeztetéséhez keressen bizalommal!

Lakás részletei

Ár: 19 900 000 Ft
Méret: 38 négyzetméter
Azonosító: 11605542
Irodai azonosító: 698900781
Emelet: 2. emelet
Építőanyag: Tégla
Fűtés jellege: Konvektoros
Ingatlan állapota: Átlagos
Komfort fokozat: Összkomfort
Egész szobák: 1

Egyéb jellemzők

  • Lift